ขายคอนโด 624 คอนโดเลต รัชดา (624 Condolete at Ratchada) รัชดาภิเษก 36
ขายคอนโด 624 คอนโดเลต รัชดา (624 Condolete at Ratchada) รัชดาภิเษก 36
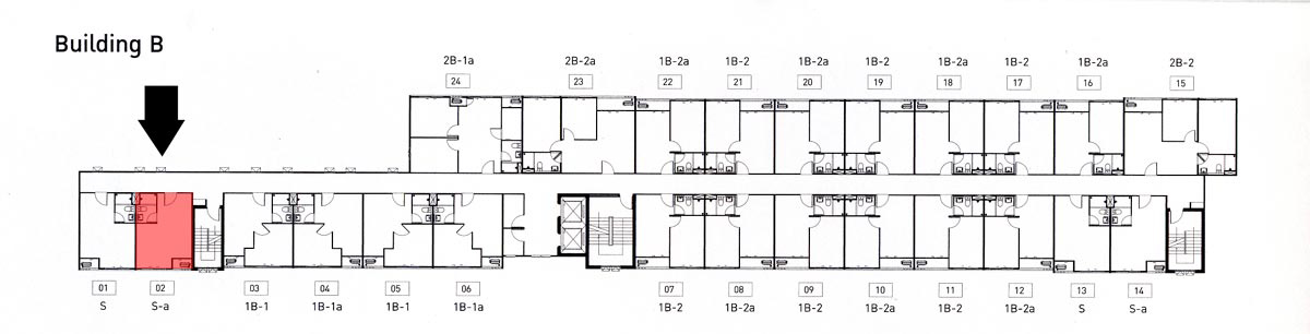
ขายชั้น 5 ตึก B ห้องติดบันไดหนีไฟ ไม่มีห้องตรงข้าม เป็นส่วนตัว ไม่มีตึกบัง
ขนาด 23.16 ตร. ม. ห้องแบบ สตูดิโอ
ของแถม แอร์ 1 เครื่อง และครัวบิ้วอิน
ผ่อน 17 งวด งวดละ 900 บาท เฉพาะงวด 5, 11, 17 งวดละ 15,000 บาท
ราคาเต็ม 1,316,800บาท
***ขายราคาตามที่จ่ายจริงไปไม่บวกเพิ่ม***
เจ้าของโครงการ : บริษัท พฤกษา เรียลเอสเตท จำกัด (มหาชน)
ประเภทโครงการ : คอนโดมิเนียม สูง 8 ชั้น จำนวน 3 อาคาร
เนื้อที่โครงการ : 4 ไร่ 2 งาน 24 ตารางวา
สนใจรายละเอียดติดต่อ 088-642-3000 ใหญ่
![]() | ![]() | ![]() |
| ราคา: | 1,316,800 บาท | ต้องการ: | ขาย | ||
| ติดต่อ: | คุณใหญ่ | อีเมล์: | |||
| สภาพ: | ใหม่ | จังหวัด: | กรุงเทพมหานคร | ||
| โทรศัพย์: | 0886423000 | IP Address: | 124.122.6.xx | ||
| มือถือ: | 0886423000 | ||||
| ที่อยู่: | เขตจตุจักร จังหวัดกรุงเทพมหานคร | ||||


